TRA DESIGN E NATURA
LOCALITA': Torino
TIPOLOGIA: Residenziale
ANNO: 2023
DIMENSIONE: 120 mq
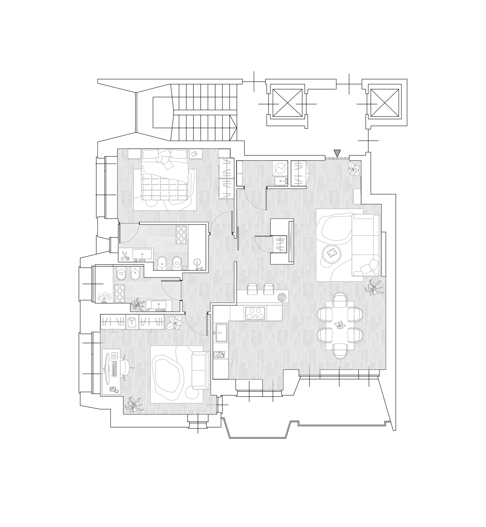
Da interni frammentati a un ambiente fluido e scenografico: questo intervento punta tutto su spazialità e luce naturale. Il cuore della casa è il living, dominato da un blocco multifunzionale "Jungle" che funge da quinta scenica, mobile TV e vano tecnico.
La coerenza estetica prosegue nella zona notte, dove il rigore delle linee minimali è scaldato dalla matericità del legno e dai richiami costanti alla natura. Ogni stanza, dalle camere avvolgenti ai bagni ricercati, riflette un’identità contemporanea. Un perfetto equilibrio tra ottimizzazione degli spazi e una forte anima decorativa.






